Townhouses en Olivos — Diseño contemporáneo y naturaleza

Foresta

Vivir entre árboles, a minutos de todo.

Diseño, naturaleza y confort
en el norte de Buenos Aires

Limehouse Foresta es un conjunto de 8 townhouses con diseño contemporáneo y seguridad perimetral, en una zona residencial tranquila y arbolada de Olivos. Un proyecto ideal para familias que busca combinar la calidez del entorno verde con la conectividad del norte del Gran Buenos Aires.

Cada unidad fue diseñada para ofrecer privacidad total, espacios amplios y terminaciones de primera calidad.

8 Unidades
2 Tipologías
Olivos Partido de Vicente López

Estacionamiento propio

Cada unidad con su propio espacio de estacionamiento

Baulera opcional

Espacio de guardado adicional disponible como opción

Seguridad

Cámaras perimetrales y cerco eléctrico

Privacidad total

Unidades independientes — tu espacio, tu ritmo

Estética y calidad
que marcan la diferencia

La calidad de un proyecto se percibe en los detalles. En Limehouse Foresta cada terminación fue elegida con criterio: mesadas en Silestone blanco, pisos en porcelanato de alto tránsito, carpinterías de calidad, griferías de primera línea. Una paleta en tonos madera, blanco y gris claro que crea ambientes cálidos, atemporales y fáciles de habitar. No seguimos tendencias — elegimos materiales que con el tiempo se ven mejor.

Cocina integrada — selección de materiales
Dormitorio — estética y terminaciones

Dos formas de vivir,
un mismo estándar

Departamentos Limehouse Foresta
4 Unidades

Departamentos Dúplex

3 ambientes · Frente al proyecto

105 m² Superficie cubierta
16 m² Terraza propia
3 Plantas
cocina
living/comedor
dormitorio ×2
toilette
baños en suite
lavadero
parrilla
garage
Consultá precio Descargar Brochure
Casas Limehouse Foresta
4 Unidades

Casas con Jardín

4 ambientes · Dúplex con jardín privado

112 m² Superficie cubierta
71 m² Jardín privado
15 m² Galería
cocina
living/comedor
dormitorio ×3
toilette
baños
lavadero
jardín
galería/pergola
parrilla
garage
pileta

* opcional

Consultá precio Descargar Brochure

Cada rincón, pensado
para disfrutar

Living comedor departamento Living comedor con luz natural
Cocina integrada Cocina integrada
Dormitorio principal Dormitorio principal
Terraza con parrilla Terraza con parrilla
Casas con jardín Casas con jardín
Living comedor casas Living comedor
Jardín y parrilla Jardín y parrilla
Fachada Limehouse Foresta Vista frente desde calle Barreiro Aguirre
Vista nocturna Vista nocturna
Contrafrente Contrafrente del proyecto
Vista nocturna 2 Vista nocturna exterior

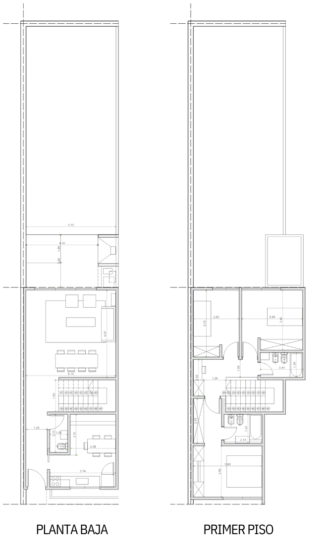
Distribución pensada
para cada momento

Plano Casa Limehouse Foresta
Plano Departamento Limehouse Foresta

Olivos, Vicente López

Barreiro Aguirre 4259, Olivos
Vicente López, Buenos Aires

Unicenter Shopping A 400 metros
Autopista Panamericana Acceso directo
Zona residencial arbolada Barrio tranquilo de Olivos, cerca de áreas comerciales

Calidad en cada detalle

  • Estructura independiente de hormigón armado
  • Muros de ladrillo hueco con aislación hidrófuga
  • Terminación exterior: revestimiento tipo Tarquini y símil siding
  • Interiores: enduido y pintura al látex blanco
  • Circuitos completos para tomas e iluminación
  • Preinstalación para AA en dormitorios y estar
  • Gas para caldera dual y cocina a gas
  • Tablero con medidor individual
  • Losa radiante por agua con caldera dual
  • Cañerías previstas para futuros AA
  • Mesada principal: silestone blanco
  • Mesada adicional: símil madera (zona no húmeda)
  • Muebles: melamina blanca con detalles símil madera
  • Pileta: acero inoxidable
  • Equipamiento: horno eléctrico + anafe a gas Longvie
  • Grifería: monocomando Hidromet
  • Artefactos: Ferrum Bari
  • Grifería: Hidromet Vector o Fly
  • Mesadas: silestone blanco
  • Vanitory: Rostock o similar, frente símil madera
  • Pisos: porcelanato símil madera
  • Placards: frentes corredizos en melamina
  • Interiores de placard en melamina blanca (opcional)

Consultá precio
y disponibilidad

Escribinos para recibir información detallada sobre las unidades disponibles, formas de pago y todo lo que necesites saber sobre Limehouse Foresta.

Descargar Brochure